全國服務熱線:
400-816-1636
菜單

掃一掃關注公眾號
硅基輻照度傳感器是錦州陽光氣象科技有限公司根據太陽能電池板的特性,專門為光伏發電行業研制的一款低成本、高可靠性的太陽輻照度測量傳感器。其傳感器的本身,采用硅基結構與光伏板的結構及其相似,是一個十分理想的參照系統。特別是它的光譜響應以及傾斜誤差都與光伏板極其相似,這讓使用硅基傳感器來精準的分析光伏板輻照度數據,有據可循。
硅基太陽能電池,能夠作為輻照度傳感器,是因為其短路電流與輻照度成正比。我們的傳感器使用的單晶硅太陽能電池并聯。由于并聯的低電阻, 運行時電流與短路電流幾乎相同。為了最小化溫度對測量信號的影響,增加了溫度傳感器來補償數據,傳感器安裝在電池板的后面,檢測值可近似等同于組件溫度。

太陽能電池片嵌入在醋酸乙烯酯中,層疊的電池集成到鋁涂層的小盒中。因此傳感器的結構與標準的光伏組件模塊十分相似。線纜的接口是一個IP67 的防水接頭。安裝掛件角度可調,使用時調節到與光伏組件角度一致即可。

|
太陽能電池板
|
單晶硅(50mm*50mm)
|
|
使用溫度
|
-40℃ 到 80℃
|
|
防護等級
|
鋁涂層, IP65
|
|
外形尺寸(長*寬*高)
|
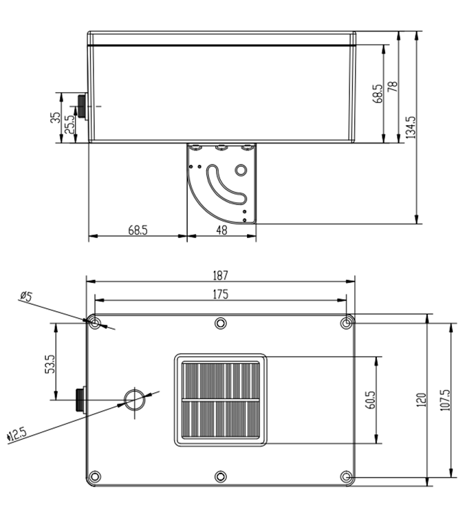
187mm*120mm*78mm
|
|
重量(kg)
|
≈1kg
|
|
通訊協議
|
標準Modbus協議
|
|
輸出接口
|
RS485 /0-20mv/4-20mA可選
|
|
供電
|
DC12V
|
|
功耗
|
10mA
|
|
測量范圍
|
太陽輻照度:0-2000W/ m²
組件溫度:-40~80℃
|
|
響應時間(99%)G>50W/m²
|
0.15S
|
|
偏移
|
1W/m²
|
|
穩定性
|
0.50%測量值
|
|
非線性
|
0.10%測量值
|
|
準確性
|
5%測量值
|


